WCSC Plans
The Wayland Community Sports Center (WCSC) is an exciting concept driven by a group of Wayland residents with professional expertise and a passion for youth sports. The group identified the need for a multi-purpose indoor recreational space at 195 Main Street by the Middle School.
With an initial high-level design drafted, a list of ideal requirements outlined by seasoned professionals, and an understanding of the benefits the space would bring to the Wayland community, the next steps for moving forward are well-defined and actionable.
Sports Center Requirements
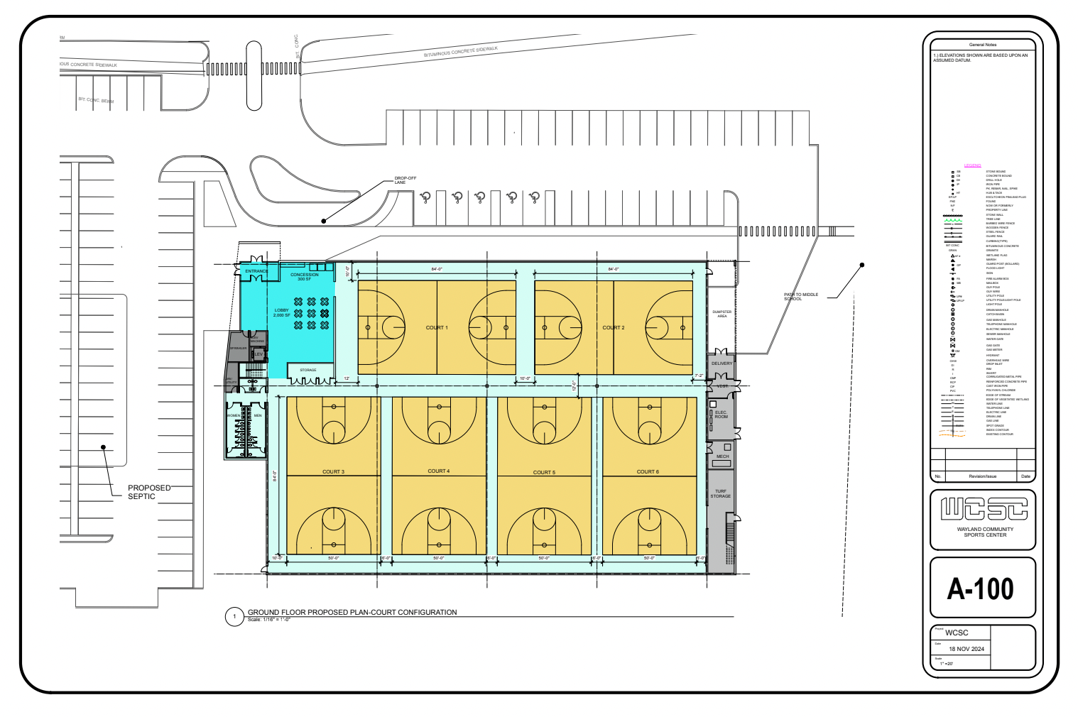
- 34,000 square feet
- Accommodate multiple sports – baseball, volleyball, basketball, pickleball
- Room for up to 6 full-size basketball courts
- Roll-over turf – 4 convert/flip to 22,000 sq ft of turf (official 7v7 soccer)
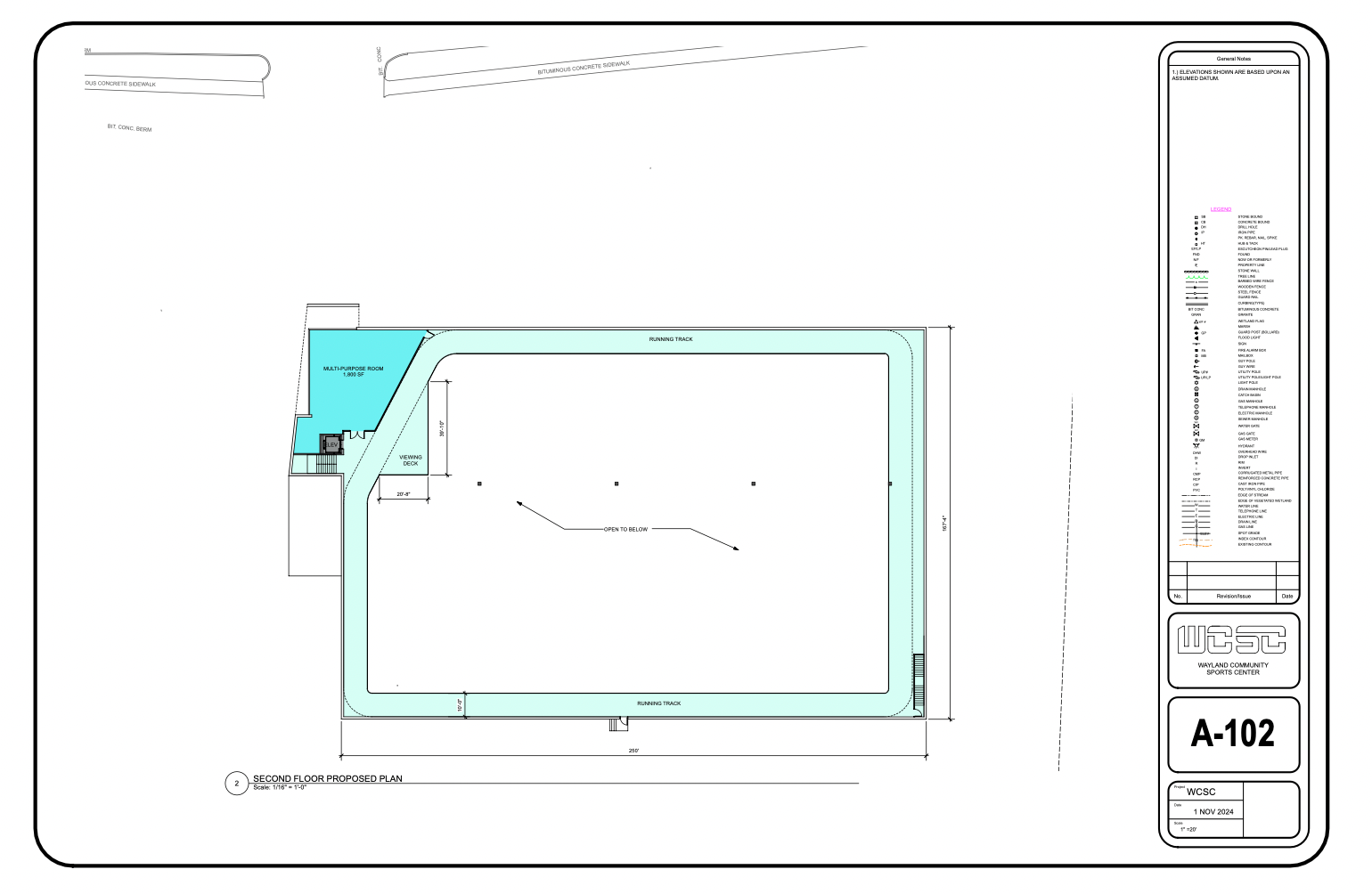
- Raised walking track
- Drop down net divides
- Above areas for viewing
- Motorized components for efficiency and space saving measures
Benefits of a New Center
The benefits of a new community sports center in Wayland extend across generations and reach beyond just sports. A center like the one being proposed by the WCSC team will be a resource for the entire Wayland community -- athletes and otherwise. It will be a place we can all gather, share, and enjoy.
Affordable Sports Space
The buildout of the Wayland Community Sports Center will provide affordable rental space for Wayland youth sports.
Recreational Activities
With a multi-purpose space, Wayland can offer new recreational opportunities, including an indoor walking track and pickleball.
After School Programs
A new center presents opportunities to create after school programming for families that are in need of care options.
Town Revenue
The proposed center includes a percentage share for the Town of Wayland on revenues earned, creating a new revenue stream for the town without increasing resident taxes.




